ホーム >  建売情報 >  物件種類・価格帯 >  新築住宅 >  川西町Q①号棟 R7.12.24初掲載 1区画のみ オール電化 サンルーム付き
川西町Q①号棟 R7.12.24初掲載 1区画のみ オール電化 サンルーム付き  高ヒット
物件印刷
価格 所在地 土地面積 建物面積 間取り 築年月
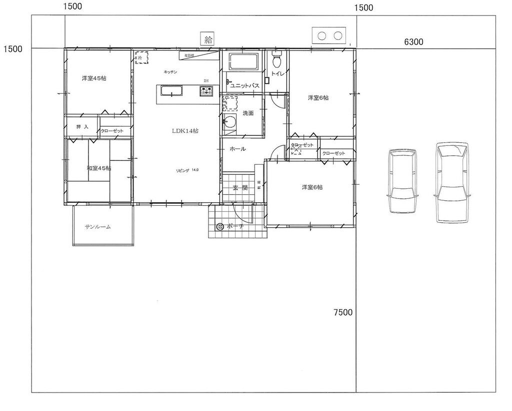
1,925万円(税込) 鹿屋市川西町4148番41 354.45㎡
(107.22坪)
97.13㎡
(29.92坪)
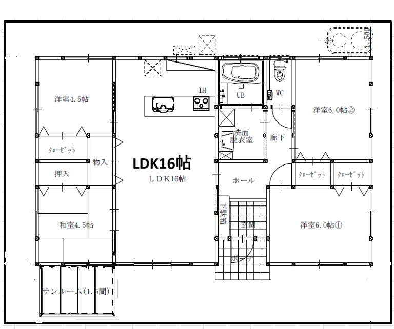
4LDK R8年6月
完成予定
借入金額 万円
頭金 万円
借入期間
金利 変動金利 1.1%
直接入力する  %
毎月のご返済額 -
配置図
配置図
リビング16帖
リビング16帖
施工例
施工例
施工例
施工例
施工例
施工例
施工例
施工例
施工例
施工例
施工例
施工例
施工例
施工例
施工例
施工例
サンルーム設置例
サンルーム設置例
施工例
施工例
配置図
配置図
交通 田崎中前バス停迄
徒歩9分
駐車場
建物構造 木造粘土瓦葺平家建
階数 地上1階
現況 着工中
引渡 相談
総区画数/総戸数 1区画
販売区画数/販売戸数 1区画
土地権利 所有権
地目 宅地
都市計画 未線引区域
用途地域 無指定
建ペイ率/容積率 70%/400%
小学校 田崎小迄1,113m
中学校 田崎中迄1,475m
売主 ㈲一里山不動産
確認番号 第R07SHC126387号
登録日 令和7年12月24日
物件番号 川西町Q①号棟
取引態様 売主

周辺環境
 
田崎小学校     田崎中学校
 
ミネサキ川西店   コスモス川西店
  
ドラッグストアモリ川西店   セブンイレブン  川西店


川西町Q区画  1区画販売
①1925.0万円  354.45㎡(107.22坪)建売 4LDK

 
【建売住宅仕様】
  ↓↓↓↓
・オール電化住宅・サンルーム付              
・三菱ヒートポンプ給湯器(460ℓフルオート)
・LIXIL シャワートイレ
(カウンター、キャビネット付き手洗器付)
・クリナップシステムキッチン
(IH・浄水器・食器洗い乾燥機付・サイドフード・人工大理石シンク)
・LIXIL システムバスルーム
(浴室暖房機能付・半身浴槽・ロングミラー・ランドリーパイプ付)
・LIXIL 洗面化粧台(三面鏡・シャワー水洗)
・キッチンカウンター(アクセントクロス)
・クリナップ 食器棚・カラーTVドアホン
・シャッター雨戸(オプション※電動シャッター3ヵ所)
・壁、天井断熱材
・犬走り一体型ベタ基礎・防火サイディング
・ペアガラス・サンルーム、・(床:2重張り)

※浄化槽設置工事別途…必要 
※南側公道5mに18.69mに接す


※㈲一里山不動産の分譲地は、地盤調査、地盤改良、上水道、
    排水完備込みの価格です。

詳しくは、当社までご連絡ください。売主:㈲一里山不動産

物件印刷
カテゴリ内ページ移動 ( 116  件):     1 ..  42  43  44  45  46  47  48  .. 116    


令和8年

次回は 2/8(日)開催!

    お昼12時~17時


  1. 田崎町H⑨

  2. 大崎町假宿C④

  3. 串良町有里G⑦ 

  4. 旭原町G④

  5. 都城市梅北 自社中古



☆ご来場お待ちしております



建売住宅完成物件多数有!





民放放送テレビでCM中!





★一里山不動産杯

きもつきKIDS駅伝大会


  開催のご案内


令和8年3月20日(金)

場所:肝付町総合グランド

参加者:幼児~高校生まで

詳細は下記まで

 ◆高山ジュニア陸上クラブ

担当: 津曲 090-3073-5462



一里山不動産杯 

小中学生駅伝競走大会 放送






ご来店・ご来場プレゼント!

   

   【お菓子詰合せ

  





  ↓ ↓ ↓

 買取担当地区別

都城・三股方面

担当  盛川 (もりかわ)

℡ 090-1928-5292



志布志・大崎方面

国分姶良方面

担当  永山 (ながやま)

℡ 090-1163-0476



鹿屋垂水方面

担当 髙橋(たかはし)

℡ 080-6012-0648



秘密厳守☆現金払い

☆スピード対応!!













  





鹿屋市札元1丁目 2K

近くのスーパーまで400m

空き情報 3/1~可


鹿屋市旭原町  2LDK

近くのコンビニまで600m


料金 : 一日 3,500円

家電付・光熱費込み

 インターネット無料

 笠之原IC入口まですぐ!

空き情報 2月~可

◆長期利用歓迎!!

アパート空室情報

仲介手数料不要↓↓↓

★インターネット無料!! 

札元  パークサイドヴィレッジ

 2階 空室有(即入居可)

旭原町 カサグランデ5階建て

1階 2階空室有(即入居可)





☆ご紹介下さい☆

商品券プレゼント!







↑送信フォーム クリック


---------------------------

一里山不動産では様々な

活動を応援しています!

----------------------------



◆大隅史談会

歴史に興味のある方!!


◆鹿屋体育大学 

体操部 オフィシャルサイト

◆高山ジュニア陸上クラブ

担当: 津曲 090-3073-5462





 

ご成約の皆様


 

営業担当のご案内
福山 敏昭大型物件  
地区別担当 仲介
神 田販売・査定
寿1~8丁目・旭原
札元1~2丁目・笠之原 
建売・自社中古(全域)!
船 間販売・査定
西原・上谷・上野・今坂
共栄・王子(上下)・大浦
高隈・野里・下祓川(上下)
建売・自社中古(全域)!
木 原販売・査定
川西・田崎・吾平・下堀
大姶良・横山・新川
川東・肝付

建売・自社中古(全域)!
盛   川販売・査定
都城・三股・末吉
土地・中古買取

都城方面自社リフォーム

自社中古 (都城・末吉等)
永   山販売・査定
志布志・大崎・岩川・末吉
野方・有明・松山・串間
東串良

鹿屋方面自社リフォーム
国分・姶良方面自社リフォーム
自社中古(姶良・国分等)
建売・自社中古(全域)!
髙   橋販売・査定
串良・上小原・有里・東原
錦江・南大隅・古江・花岡
細山田・百引
鹿屋方面自社リフォーム

建売・自社中古(全域)!

村 場
リフォーム・査定
任売・競売・裁判所
賃貸担当   
TEL 090-3665-3978
 
アパート・貸家(自社) ↓↓
自社物件 緊急連絡先
☎ 090-3665-3978
(営業時間外の緊急時)

鹿屋、大隅、霧島
都城・宮崎方面の
物件探しならおまかせ!
㈲一里山不動産
☎ 0994-44-2824
0120-44-3824フリーダイヤル
お気軽にお問合せ下さい
新築住宅多数販売
サイドリンク


友だち追加

宅建協会
at home
鹿屋市のリンク集
霧島市のリンク集
鹿児島市のリンク集
都城市のリンク集
宮崎市のリンク集