
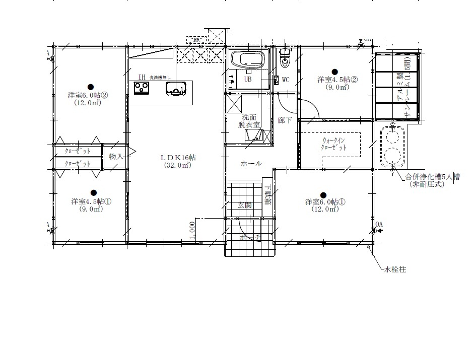
鹿屋市串良町上小原 R8.4.28初掲載 オール電化
|
| 価格 | 所在地 | 土地面積 | 建物面積 | 間取り | 築年月 |
| 1,880万円(税込) | 鹿屋市串良町上小原3504番31 | 283.27㎡ (85.68坪) |
107.08㎡ (32.39坪) |
4LDK | R5年7月築 |
|
|
|

予約不要!
ご来場お待ちしております
次回 5/17(日)開催!
お昼12時~17時
①串良町有里G⑥
②志布志町帖E①
③都城志比田町 自社中古
※掲載準備中↓
④新川町 自社中古
⑤新栄町 自社中古
民放放送テレビでCM中!
一里山不動産杯
きもつきKIDS 駅伝大会
たくさんのご声援
有難うございました!!
一里山不動産杯
小中学生駅伝競走大会 放送



【お菓子詰合せ】



↓ ↓ ↓
買取担当・地区別
都城・三股方面
担当 盛川 (もりかわ)
℡ 090-1928-5292
志布志・大崎方面
国分・姶良方面
担当 永山 (ながやま)
℡ 090-1163-0476
鹿屋・垂水方面
担当 髙橋(たかはし)
℡ 080-6012-0648
☆秘密厳守☆現金払い
☆スピード対応!!

①札元1丁目 2K
近くのスーパーまで400m
インターネット無料
料金 : 一日 3,500円
②旭原町 2LDK
近くのコンビニまで600m
料金 : 一日 3,500円
◆家電付・光熱費込み
インターネット無料
笠之原IC入口まですぐ!
◆長期利用歓迎!!
★アパート空室情報
仲介手数料不要↓↓↓
★インターネット無料!!
札元 パークサイドヴィレッジ
家電付きお部屋あります
2階 空室有(即入居可)
旭原町 カサグランデ5階建て
1階 2階空室有(即入居可)

☆ご紹介下さい☆
商品券プレゼント!![]()


↑送信フォーム クリック
---------------------------
一里山不動産では様々な
活動を応援しています!
----------------------------
◆大隅史談会
歴史に興味のある方!!
◆鹿屋体育大学
体操部 オフィシャルサイト
◆高山ジュニア陸上クラブ
担当: 津曲 090-3073-5462


営業担当のご案内
福山 敏昭大型物件 地区別担当 仲介
神 田
販売・査定
寿1~8丁目・旭原
札元1~2丁目・笠之原
建売・自社中古(全域)!
神 田
販売・査定寿1~8丁目・旭原
札元1~2丁目・笠之原
建売・自社中古(全域)!
船 間
販売・査定
西原・上谷・上野・今坂
共栄・王子(上下)・大浦
高隈・野里・下祓川(上下)
建売・自社中古(全域)!
木 原
販売・査定
川西・田崎・吾平・下堀
大姶良・横山・新川
川東・肝付
建売・自社中古(全域)!
盛 川
販売・査定
都城・三股・末吉
土地・中古買取
都城方面自社リフォーム
自社中古 (都城・末吉等)
販売・査定西原・上谷・上野・今坂
共栄・王子(上下)・大浦
高隈・野里・下祓川(上下)
建売・自社中古(全域)!
木 原
販売・査定川西・田崎・吾平・下堀
大姶良・横山・新川
川東・肝付
建売・自社中古(全域)!
盛 川
販売・査定都城・三股・末吉
土地・中古買取
都城方面自社リフォーム
自社中古 (都城・末吉等)
永 山
販売・査定
販売・査定志布志・大崎・岩川・末吉
野方・有明・松山・串間
東串良
鹿屋方面自社リフォーム
国分・姶良方面自社リフォーム
自社中古(姶良・国分等)
建売・自社中古(全域)!
髙 橋
販売・査定
串良・上小原・有里・東原
錦江・南大隅・古江・花岡
細山田・百引
鹿屋方面自社リフォーム
建売・自社中古(全域)!
野方・有明・松山・串間
東串良
鹿屋方面自社リフォーム
国分・姶良方面自社リフォーム
自社中古(姶良・国分等)
建売・自社中古(全域)!
髙 橋
販売・査定串良・上小原・有里・東原
錦江・南大隅・古江・花岡
細山田・百引
鹿屋方面自社リフォーム
建売・自社中古(全域)!
村 場リフォーム・査定
任売・競売・裁判所
賃貸担当 松本
TEL 090-3665-3978

アパート・貸家(自社) ↓↓
自社物件 緊急連絡先
☎ 090-3665-3978
(営業時間外の緊急時)

TEL 090-3665-3978

アパート・貸家(自社) ↓↓
自社物件 緊急連絡先
☎ 090-3665-3978
(営業時間外の緊急時)
鹿屋、大隅、霧島
都城・宮崎方面の
物件探しならおまかせ!
㈲一里山不動産
☎ 0994-44-2824
0120-44-3824フリーダイヤル
お気軽にお問合せ下さい
☆新築住宅多数販売☆


































