ホーム >  建売情報 >  物件種類・価格帯 >  新築住宅 >  田崎町H⑧号棟 R8.1.29更新 9区画 オール電化 サンルーム付き
田崎町H⑧号棟 R8.1.29更新 9区画 オール電化 サンルーム付き  高ヒット
物件印刷
価格 所在地 土地面積 建物面積 間取り 築年月
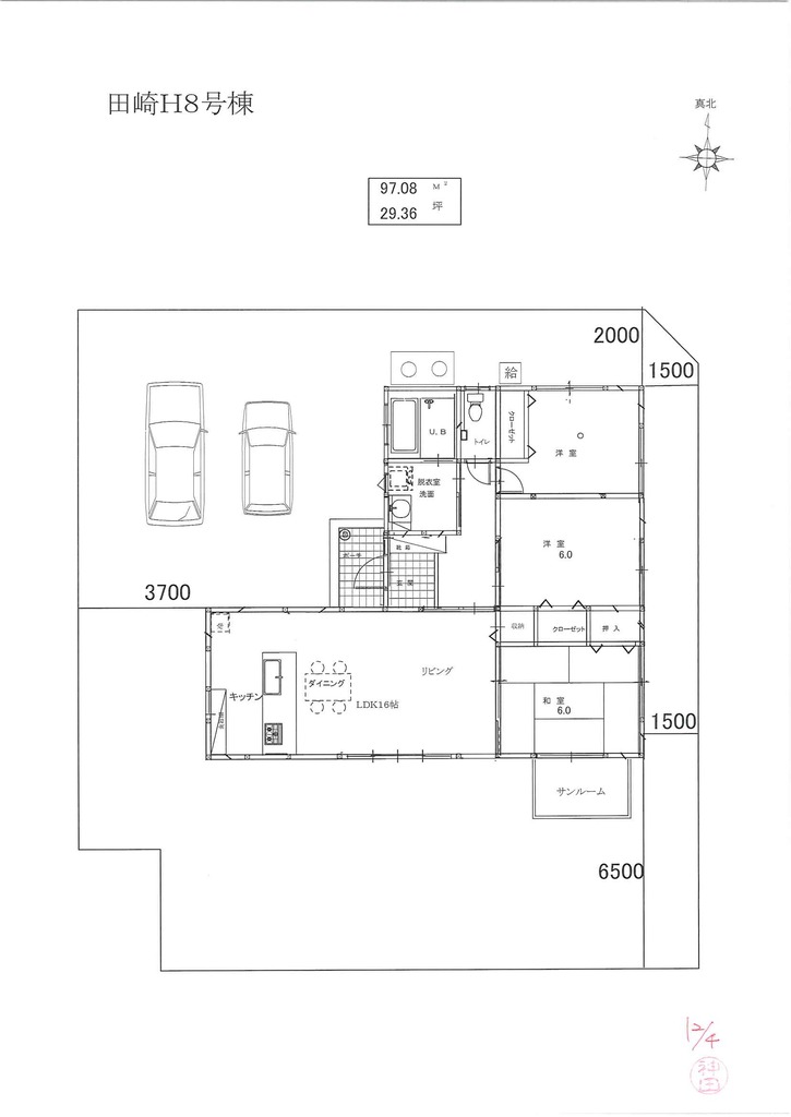
- 鹿屋市田崎町2221番48 312.17㎡
(94.43坪)
88.11㎡
(26.65坪)
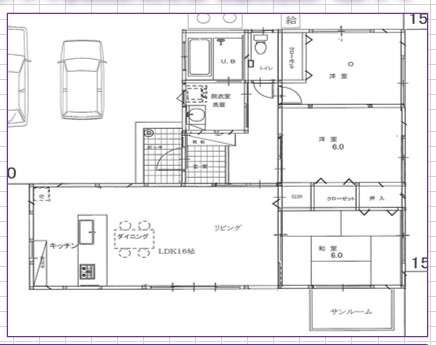
3LDK R7年12月完成
借入金額 万円
頭金 万円
借入期間
金利 変動金利 1.1%
直接入力する  %
毎月のご返済額 -
交通 田崎住宅前バス停迄
徒歩4分
駐車場
建物構造 木造粘土瓦葺平家建
階数 地上1階
現況 完成済
引渡
総区画数/総戸数 9区画
販売区画数/販売戸数 1区画
土地権利 所有権
地目 宅地
都市計画 未線引区域
用途地域 無指定
建ペイ率/容積率 70%/400%
小学校 田崎小迄3,170m
中学校 田崎中迄3,240m
売主 ㈲一里山不動産
建築確認番号 第R05SHC127342号
登録日 令和6年1月22日
ご成約日 令和8年1月29日
更新日 令和8年1月29日
物件番号 田崎町H⑧号棟
取引態様 売主
田崎町H区  全9区画!!
 ※ホームセンターカネヒロさん近く


 ※浄化槽設置工事別途…必要

【建売住宅仕様】
  ↓↓↓↓
・オール電化住宅
・三菱ヒートポンプ給湯器(460ℓフルオート)
・LIXIL シャワートイレ
    (カウンター、キャビネット付き手洗器付)
・クリナップシステムキッチン
(IH・浄水器・食器洗い乾燥機付・サイドフード
・人工大理石シンク)

・LIXIL システムバスルーム
    (浴室暖房機能付・半身浴槽・ロングミラー
・ランドリーパイプ付)
・LIXIL 洗面化粧台(三面鏡・シャワー水洗)
・キッチンカウンター(アクセントクロス)
・クリナップ 食器棚・カラーTVドアホン
・シャッター雨戸(電動シャッター3ヵ所)
・壁、天井断熱材
・犬走り一体型ベタ基礎・防火サイディング
・ペアガラス・サンルーム、
・(床:2重張り)

総区画数9区画
①②③④⑤⑥成約済

⑦号棟 建売 1592.1万円 4LDK
⑧ご成約
⑨号棟 建売 1564.4万円 3LDK

※2221-50…道路位置指定
​ (第2021-24号)持ち分1/6づつ

≪周辺環境≫
 
田崎小学校     田崎中学校
 
ミネサキ川西店   コスモス川西店
 
ドラッグストアモリ川西店


※㈲一里山不動産の分譲地は、地盤調査、地盤改良、
上水道、排水完備込みの価格です。
売主:㈲一里山不動産
物件印刷
カテゴリ内ページ移動 ( 116  件):     1 ..  8  9  10  11  12  13  14  .. 116    


令和8年

次回は 2/8(日)開催!

    お昼12時~17時


  1. 田崎町H⑨

  2. 大崎町假宿C④

  3. 串良町有里G⑦ 

  4. 旭原町G④

  5. 都城市梅北 自社中古



☆ご来場お待ちしております



建売住宅完成物件多数有!





民放放送テレビでCM中!





★一里山不動産杯

きもつきKIDS駅伝大会


  開催のご案内


令和8年3月20日(金)

場所:肝付町総合グランド

参加者:幼児~高校生まで

詳細は下記まで

 ◆高山ジュニア陸上クラブ

担当: 津曲 090-3073-5462



一里山不動産杯 

小中学生駅伝競走大会 放送






ご来店・ご来場プレゼント!

   

   【お菓子詰合せ

  





  ↓ ↓ ↓

 買取担当地区別

都城・三股方面

担当  盛川 (もりかわ)

℡ 090-1928-5292



志布志・大崎方面

国分姶良方面

担当  永山 (ながやま)

℡ 090-1163-0476



鹿屋垂水方面

担当 髙橋(たかはし)

℡ 080-6012-0648



秘密厳守☆現金払い

☆スピード対応!!













  





鹿屋市札元1丁目 2K

近くのスーパーまで400m

空き情報 3/1~可


鹿屋市旭原町  2LDK

近くのコンビニまで600m


料金 : 一日 3,500円

家電付・光熱費込み

 インターネット無料

 笠之原IC入口まですぐ!

空き情報 2月~可

◆長期利用歓迎!!

アパート空室情報

仲介手数料不要↓↓↓

★インターネット無料!! 

札元  パークサイドヴィレッジ

 2階 空室有(即入居可)

旭原町 カサグランデ5階建て

1階 2階空室有(即入居可)





☆ご紹介下さい☆

商品券プレゼント!







↑送信フォーム クリック


---------------------------

一里山不動産では様々な

活動を応援しています!

----------------------------



◆大隅史談会

歴史に興味のある方!!


◆鹿屋体育大学 

体操部 オフィシャルサイト

◆高山ジュニア陸上クラブ

担当: 津曲 090-3073-5462





 

ご成約の皆様


 

営業担当のご案内
福山 敏昭大型物件  
地区別担当 仲介
神 田販売・査定
寿1~8丁目・旭原
札元1~2丁目・笠之原 
建売・自社中古(全域)!
船 間販売・査定
西原・上谷・上野・今坂
共栄・王子(上下)・大浦
高隈・野里・下祓川(上下)
建売・自社中古(全域)!
木 原販売・査定
川西・田崎・吾平・下堀
大姶良・横山・新川
川東・肝付

建売・自社中古(全域)!
盛   川販売・査定
都城・三股・末吉
土地・中古買取

都城方面自社リフォーム

自社中古 (都城・末吉等)
永   山販売・査定
志布志・大崎・岩川・末吉
野方・有明・松山・串間
東串良

鹿屋方面自社リフォーム
国分・姶良方面自社リフォーム
自社中古(姶良・国分等)
建売・自社中古(全域)!
髙   橋販売・査定
串良・上小原・有里・東原
錦江・南大隅・古江・花岡
細山田・百引
鹿屋方面自社リフォーム

建売・自社中古(全域)!

村 場
リフォーム・査定
任売・競売・裁判所
賃貸担当   
TEL 090-3665-3978
 
アパート・貸家(自社) ↓↓
自社物件 緊急連絡先
☎ 090-3665-3978
(営業時間外の緊急時)

鹿屋、大隅、霧島
都城・宮崎方面の
物件探しならおまかせ!
㈲一里山不動産
☎ 0994-44-2824
0120-44-3824フリーダイヤル
お気軽にお問合せ下さい
新築住宅多数販売
サイドリンク


友だち追加

宅建協会
at home
鹿屋市のリンク集
霧島市のリンク集
鹿児島市のリンク集
都城市のリンク集
宮崎市のリンク集